- Woonoppervlakte
- Circa 108 m²
- Perceeloppervlakte
- Circa 132 m²
- Bouwjaar
- Gebouwd in 1963
- Aantal kamers
- 5 kamers (4 slaapkamers)
De woning bevindt zich in een prettige woonomgeving met alle dagelijkse voorzieningen binnen handbereik. In de directe omgeving vind je diverse winkels, basisscholen, sportverenigingen en het recreatiegebied de Houtkamp. Ook winkelcentrum De Winkelhof is eenvoudig bereikbaar en dankzij de gunstige ligging ten opzichte van uitvalswegen ben je zo in het centrum van Leiden of op de snelweg richting Den Haag en Amsterdam.
De woning zelf biedt volop mogelijkheden voor wie op zoek is naar ruimte én de kans om het geheel naar eigen smaak en inzicht te moderniseren.
Met vijf kamers, waaronder vier slaapkamers, is dit een ideaal huis voor gezinnen of voor wie extra werk- of hobbyruimte wenst. De zonnige achtertuin is een van de sterke punten van deze woning: een fijne plek waar je de hele dag van het buitenleven kunt genieten.
Voor deze woning hebben wij een mooie woningwebsite gemaakt met alle informatie binnen handbereik. Kijk hiervoor op Baljuwstraat11.nl
Indeling:
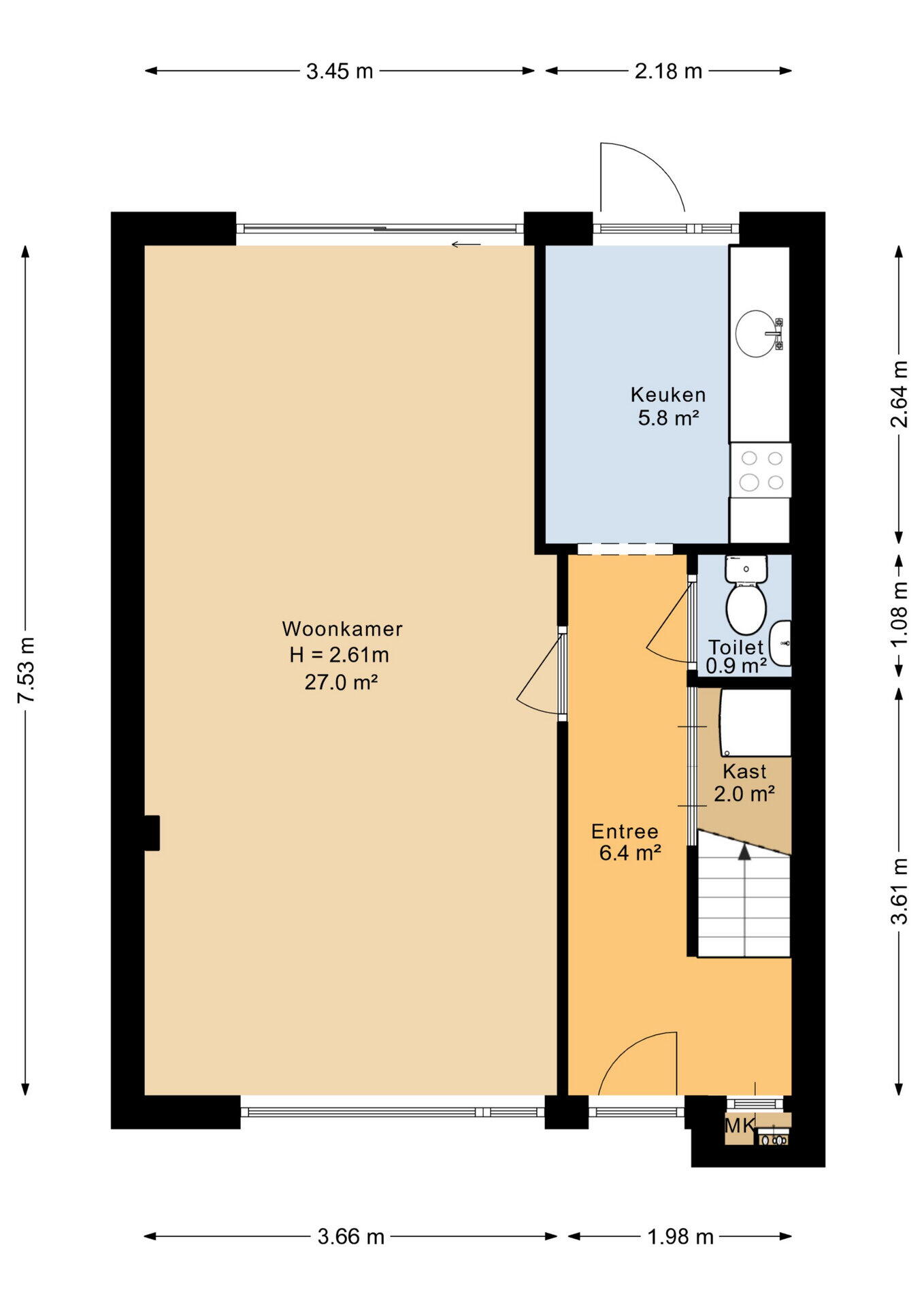
Begane grond:
Via de voortuin kom je binnen in de entree van de woning. Hier bevindt zich de meterkast, het toilet, de trap naar de eerste verdieping en een praktische trapkast.
De woonkamer is licht dankzij de grote raampartijen aan zowel de voor- als achterzijde en biedt via een schuifpui direct toegang tot de ruime en zonnige achtertuin. Vanuit de hal is de keuken bereikbaar. Deze is eenvoudig van uitvoering en biedt eveneens toegang tot de tuin.
De achtertuin is royaal van formaat, gelegen op het westen en voorzien van een vrijstaande stenen berging met elektra en een achterom.
1e etage:
Op de eerste verdieping bevinden zich drie slaapkamers en een badkamer. Aan de achterzijde liggen 2 slaapkamers waaronder ook de grootste slaapkamer. De slaapkamer aan de voorzijde beschikt over een vaste kast over de gehele lengte waardoor er genoeg opbergruimte is.
Daarnaast bevindt zich de badkamer die ingericht is met een douche, toilet en wastafel.
2e etage:
Op de tweede verdieping bevindt zich een royale slaapkamer met toegang tot een balkon aan de achterzijde waar u heel de dag van de zon kan genieten. Daarnaast is er op deze verdieping een praktische berging en een ruime overloop.
Wetenswaardig:
- Woonoppervlakte: 108 m2;
- Bouwjaar: 1963;
- Energielabel: E;
- Combiketel 2017;
- Ruim en zonnige (ZW) achtertuin;
- Ouderdomsclausule van toepassing;
- Niet-bewoningsclausule van toepassing (verkoper is niet de eigenaar bewoner);
- Er is geen Vragenlijst deel B;
- Bouwkundig keuringsrapport is beschikbaar;
- Oplevering kan spoedig.
Interesse in deze woning? Schakel direct uw eigen NVM-aankoopmakelaar in.
Uw NVM-aankoopmakelaar komt op voor uw belang en bespaart u veel tijd, geld en zorgen.
Adressen van collega NVM-aankoopmakelaars in Leiderdorp vindt u op Funda.nl.
Deze informatie is door ons met de nodige zorgvuldigheid samengesteld. Onzerzijds wordt echter geen enkele aansprakelijkheid aanvaard voor enige onvolledigheid, onjuistheid of anderszins, dan wel de gevolgen daarvan. Alle opgegeven maten en oppervlakten zijn indicatief.
Koopovereenkomst pas rechtsgeldig na ondertekening:
Een mondelinge overeenstemming tussen de particuliere verkoper en de particuliere koper is niet rechtsgeldig. Met andere woorden: er is geen koop. Er is pas sprake van een rechtsgeldige koop als de particuliere verkoper en de particuliere koper de koopovereenkomst hebben ondertekend. Dit vloeit voort uit artikel 7:2 Burgerlijk Wetboek. Een bevestiging van de mondelinge overeenstemming per e-mail of een toegestuurd concept van de koopovereenkomst wordt overigens niet gezien als een 'ondertekende koopovereenkomst'.
Overdracht
- Vraagprijs
- Vraagprijs: € 450.000 k.k.
- Status
- Verkocht
- Aanvaarding
- In overleg
Bouw
- Object type
- Eengezinswoning, tussenwoning
- Soort bouw
- Bestaande bouw
- Bouwjaar
- 1963
- Soort dak
- Zadeldak
Oppervlakte en inhoud
- Woonoppervlakte
- 108 m²
- Perceeloppervlakte
- 132 m²
- Inhoud
- 384 m³
- Externe bergruimte
- 9 m²
- Gebouwgeb. buitenruimte
- 11 m²
Indeling
- Aantal kamers
- 5 kamers (4 slaapkamers)
- Aantal badkamers
- 1 badkamer
- Badkamervoorzieningen
- Toilet, douche, wastafel, wastafelmeubel
- Aantal woonlagen
- 3 woonlagen
- Voorzieningen
- Buitenzonwering, schuifpui, natuurlijke ventilatie
Energie
- Energielabel
- E
- Energielabel registratie
- 07-12-2020
- Isolatie
- Muurisolatie, dubbel glas
- Verwarming
- Cv-ketel
- Warm water
- Cv-ketel
- Cv ketel
- Remeha tzerra m28c plus combiketel gas gestookt uit 2017 (eigendom)
Buitenruimte
- Ligging
- Aan rustige weg, in woonwijk
- Balkon / dakterras
- Dakterras
- Tuin
- Achtertuin, voortuin
- Afmetingen achtertuin
- 56 m² (9.51 meter diep en 5.88 meter breed)
- ligging tuin
- Gelegen op het zuidwesten en bereikbaar via achterom
Bergruimte
- Schuur / berging
- Vrijstaand steen
- Voorzieningen
- Voorzien van elektra
Garage
- Soort garage
- Geen garage
Parkeergelegenheid
- Soort parkeergelegenheid
- Openbaar parkeren
Energieverbruik in Leiderdorp
Energielabel deze woning
Energielabel E
Publicatie energielabel: 07-12-2020
Stroomverbruik per jaar
(Gemiddelde tussenwoning in Leiderdorp)
Gasverbruik per jaar
(Gemiddelde tussenwoning in Leiderdorp)
* Cijfers zijn afkomstig van het CBS en bedoeld als indicatie en kunnen verschillen voor deze woning
Indicatie hypotheeklasten
Eigen inleg:
Spaargeld / overwaarde
Rente:
Laagste 10-jaars rente
Laagste 10-jaars rente
2,98% - Centraal Beheer Groen... - NHG
3,25% - Centraal Beheer Groen... - 80%
Laagste 20-jaars rente
3,29% - Centraal Beheer Groen... - NHG
3,52% - Centraal Beheer Groen... - 80%
Laagste 30-jaars rente
3,41% - Centraal Beheer Groen... - NHG
3,74% - Centraal Beheer Groen... - 80%
Hypotheek:
Bruto maandlasten: € 0 p/m
Netto maandlasten: € 0 p/m
Hoe berekenen we dit?
Het rentepercentage is gebaseerd op de laagste 10 jaars vaste rente voor één hypotheekdeel. De vermelde rente (3.25% zonder NHG) is gecontroleerd op 05-01-2026. Deze berekening is gebaseerd op een annuïteitenhypotheek die volledig wordt afgelost, waarbij de maandlasten gedurende de gehele looptijd gelijk blijven. De werkelijke rente en netto maandlasten kunnen variëren, afhankelijk van uw persoonlijke situatie en de hypotheekverstrekker. Raadpleeg een financieel adviseur voor een nauwkeurige berekening en advies. Aan deze berekening kunnen geen rechten worden ontleend; het dient enkel als indicatie.
Documentatie
Kadastrale kaart
Leefomgeving
Plattegronden PDF
BAG uittreksel
WOZ waarderapport
Kadaster
Brochure
Bezoek onze website
Bezichtiging
Bod uitbrengen
Waardebepaling
Zoekopdracht
Alles downloaden
Zonnegrenzen bekijken
Op de kaart
Inwoners in Leiderdorp
Cijfers voor postcodegebied 2352
- Totaal aantal inwoners
- 8400 inwoners
- Mannen
- 48%
- Vrouwen
- 52%
Inwoners in Leiderdorp
Cijfers voor postcodegebied 2352
- tot 15 jaar
- 16%
- 15 tot 25 jaar
- 10%
- 25 tot 35 jaar
- 24%
- 45 tot 65 jaar
- 26%
- 65 en ouder
- 25%
Huishoudens in Leiderdorp
Cijfers voor postcodegebied 2352
- Eenpersoons zonder kinderen
- 41%
- Meerpersoons zonder kinderen
- 29%
- Huishoudens zonder kinderen
- 70%
Huishoudens in Leiderdorp
Cijfers voor postcodegebied 2352
- Huishoudens met één kind
- 8%
- Huishoudens met meerdere kinderen
- 22%
- Huishoudens met kinderen
- 30%
Woningen in Leiderdorp
Cijfers voor postcodegebied 2352
- Woningen voor 1945
- 3%
- Woningen tussen 1945 en 1965
- 19%
- Woningen tussen 1965 en 1975
- 55%
- Woningen tussen 1975 en 1985
- 4%
- Woningen tussen 1985 en 1995
- 1%
Woningen in Leiderdorp
Cijfers voor postcodegebied 2352
- Woningen tussen 1995 en 2005
- 9%
- Woningen tussen 2005 en 2015
- 7%
- Woningen na 2015
- 2%
- Huurwoningen
- 40%
- Koopwoningen
- 60%
Overige in Leiderdorp
Cijfers voor postcodegebied 2352
- Gemiddelde WOZ waarde
- € 265.000,-
- Personen onder de 65 met uitkering
- 7%
Overige in Leiderdorp
Cijfers voor postcodegebied 2352
- Adressen per km²
- 3169
- Stedelijkheid (schaal 1 op 5)
- 100%
Korte feiten over Leiderdorp
Leiderdorp (uitspraakⓘ) is een plaats en gemeente in de Nederlandse provincie Zuid-Holland. De gemeente telt 27.736 inwoners (22 november 2024, bron: CBS) en heeft een oppervlakte van 12,28 km² (waarvan 0,7 km² water). Binnen de gemeentegrenzen ligt nog de buurtschap Achthoven.
Indien u vragen heeft of u wilt een bezichtiging inplannen, dan kunt u gebruik maken van het formulier hiernaast. Er zal daarna op korte termijn contact met u worden opgenomen.
Willem Dreeslaan 214
2729NJ, Zoetermeer
079 - 203 3059 info@kleurrijkmakelaars.nl www.kleurrijkmakelaars.nlContact opnemen
Kleurrijk NVM Makelaars & Taxateurs Zoetermeer
Bij Kleurrijk NVM Makelaars & Taxateurs staan wij voor u klaar. Bent u op zoek naar een makelaar die altijd bereikbaar is, snel handelt en u begeleidt bij de complexe aspecten van de aan- of verkoop van uw woning? Dan bent u bij ons aan het juiste adres. Met jarenlange ervaring in Zoetermeer, Lansingerland en Rotterdam bieden wij u deskundig advies. Wij verwelkomen u graag op ons hoofdkantoor in Zoetermeer aan de Willem Dreeslaan 214.
Kleurrijk NVM Makelaars & Taxateurs is de juiste keuze als u:
• Op zoek bent naar een specialist in aan- en verkoopbegeleiding;
• Waarde hecht aan laagdrempelige communicatie;
• Een voorkeur heeft voor duidelijke en directe communicatie;
• Belangrijk vindt dat uw makelaar goed naar u luistert;
• Het prettig vindt als uw makelaar flexibel beschikbaar is;
• Altijd direct contact wilt met uw makelaar;
• Een onafhankelijke taxatie wenst van uw woning door een van onze registertaxateurs (NWWI/NRVT).
Passie voor het vak
Vinod Lachmon, Register NVM-makelaar, heeft jarenlange ervaring opgedaan bij diverse grote makelaarskantoren in regio’s zoals Zoetermeer, Rotterdam, Lansingerland en Gouda. Hij beschikt over uitgebreide kennis en een groot netwerk. Vinod onderscheidt zich door zijn betrokkenheid, juridische precisie en de bereidheid om ook na de aan- of verkoop voor zijn klanten klaar te staan.
Nieuwste reviews
-
Beoordeeld met een
-
Hannie Schaftrode 40
Zeer tevreden, altijd fijn en goed contact. Makelaar is zo goed als altijd bereikbaar. Had antwoord op al mijn vragen en bied fijne onderste...
-
Javalaan 444
Fijne makelaar die meedenkt en je ontzorgd.Erg goede service en je word elke keer vriendelijk te woord gestaan.Zeker een aanrader